项目名称:四季
项目类型:公寓
项目地址:Doncaster East
Doncaster East是墨尔本最好的区域之一,其地势较高,从风水角度来说,处于龙头的位置,深受国人的喜爱。
建筑融入于生活,彰显个性与魅力。
每一套豪华公寓,每一个高质量的服务,如您所需求的那样。

四季不同于位于Doncaster East的其他住宅,4套住宅连续排列在雷诺兹路上。4套住宅分别为:花、雪松、橡木和枫,给Doncaster East带来了繁缛奢华。
住宅的每一个细节设计和空间的宽敞都可谓是最高级别的。
装修豪华却不庸俗,享受品质生活
豪华的住宅体验,不惜一切追求的舒适度,让你感受在每一个指尖的触碰。每一个地方都是设计师精心设计与打造的。
平衡;健康;奢华;舒适洋溢在每一处。
阳台的空间非常充裕,无论是视角还是美观享受程度都将给您带来最舒适的体验。
家具的选材和配置每一分每一毫都是艺术的象征。
内部全部使用欧洲最最知名的电器。并提供中央供暖系统;冷却系统;全自动的窗帘双水槽以及多功能的厨房。无论是在夏季还是在冬季都让你感受到最优质的生活品质。
浴室:欧洲坐浴盆,常数温度控制淋浴头,墙上安装有镜子,以及各种可添置的卫浴用品。
周边配套齐全,尽享高端生活
在四季,你不会想象到有如此一个便捷领先的高端生活社区。
有最优质的学校、购物展览中心、大型绿地、大型的高尔夫球场及娱乐场所。这样的生活怎能不令你感到兴奋呢?
● CBD——20分钟车程
● RUFFEY LAKE PARK ——5分钟车程
● EASTERN FREEWAY ——5分钟车程
● WESTFIELD SHOPPING CENTRE ——10分钟车程
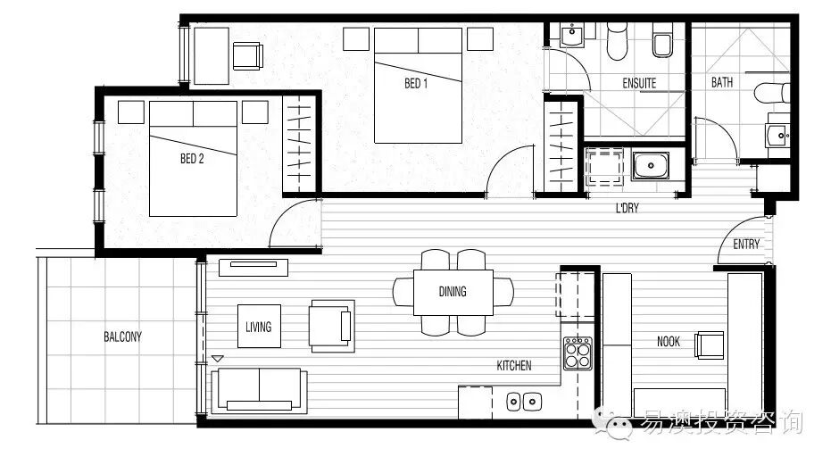
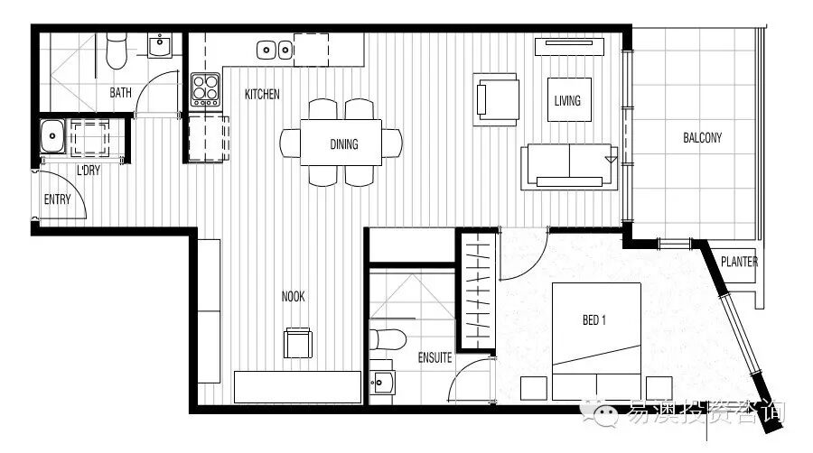
房型推荐
该项目由JD集团打造,JD集团成立于1996年,JD集团在墨尔本开发了许多备受追捧的房产项目,给买家和投资者提供了良好的投资机会。
如此优质的项目,大家千万别错过哦!!!
有兴趣的可以联系Sienna
:
微信ID: dandan_x1
澳洲电话: +61 0450171306
邮箱: tangx418@gmail.com